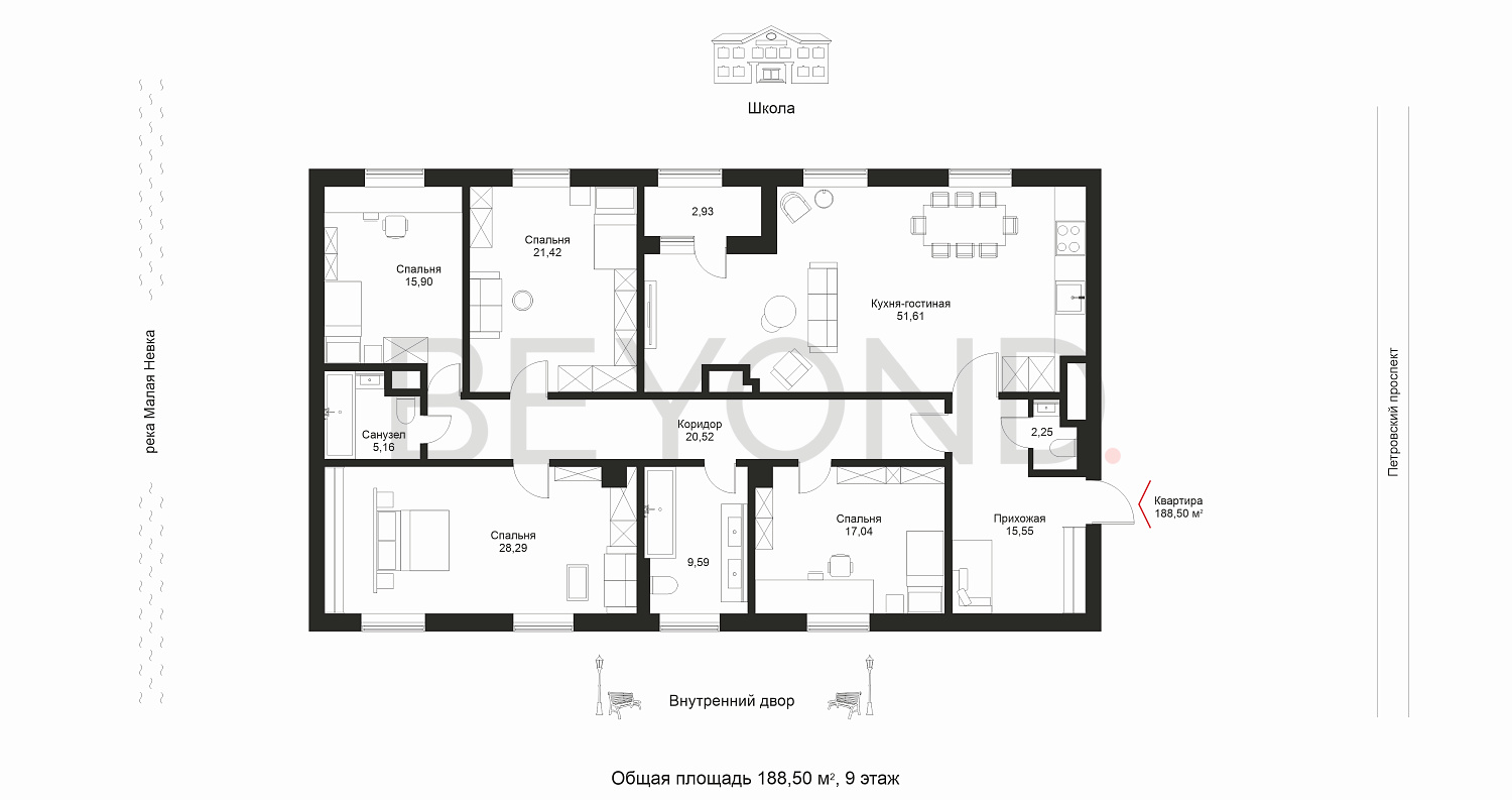
В продаже семейная квартира площадью 188,5 кв. м в премиальном комплексе Нева Хаус от известного застройщика «ЛСР» в готовом корпусе с дизайнерской входной группой. В квартире предусмотрены четыре-пять просторных спален, шикарная видовая кухня-гостиная площадью 51,6 кв. м с расширенными дубовыми окнами, ванная комната с окном и функциональный холл 35 кв. м с окном. Из квартиры открывается потрясающий вид на дворовую территорию с ландшафтным дизайном, новую школу, Крестовский остров и панораму Петровского. Окна квартиры обращены на 2 стороны, благодаря чему в квартире будет всегда светло. Квартира на последнем этаже с высотой потолка 3,8 м. В корпусе запроектировано 163 квартир, а в этой секции всего 2 квартиры на этаже. Проектом предусмотрена подсветка фасада в ночное время. Элитный дом расположился в одной из престижных локаций Санкт-Петербурга — Петровском острове, в окружении зелени Приморского парка Победы, Петровского парка и сада им. Савиной. В проекте реализуется концепция закрытой внутренней территории с ландшафтным дизайном, собственной полукилометровой прогулочной набережной вдоль Малой Невки с видами на Финский залив и великолепие Крестовского острова. Также запроектированы центральная система вентиляции и кондиционирования, система очистки воды. В составе внутренней инфраструктуры предусмотрены площадки для детей разного возраста и взрослых, а также построена школа с использованием самых последних технологий.
Элитный жилой комплекс Neva Haus расположен в 5 минутах езды от станции метро "Крестовский остров" на уединенном от суеты Петровском острове. Такое расположение позволяет одновременно быть в центре жизни Северной столицы, и в то же время наслаждаться прогулками на свежем воздухе среди зелени парков островов. Близость лучших ресторанов и яхт-клубов позволяет провести свой досуг максимально интересно и разнообразно. К тому же, Петроградская сторона давно является шопинг-центром Санкт-Петербурга, ул. Большая Зеленина уже стала известной гастрономической локацией, а на Петровском проспекте продолжают открываться разнообразные объекты модной инфраструктуры.







